Sale a licitación la construcción de la vivienda para la protección de menores de Formentera

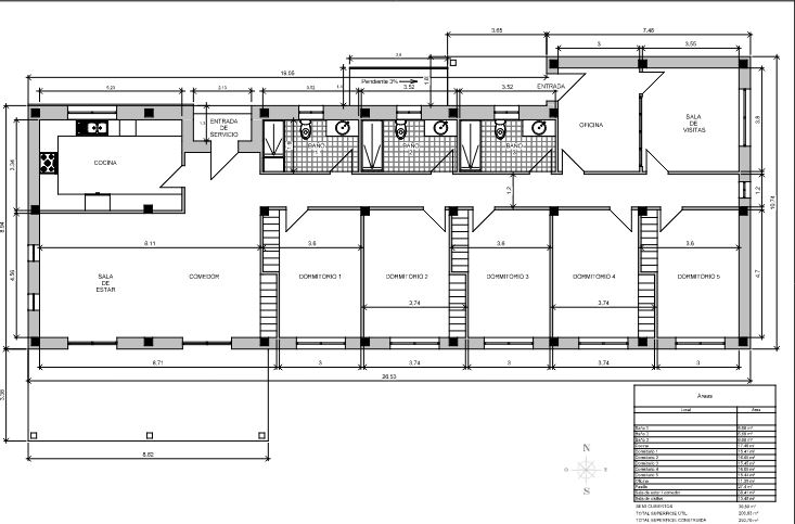
El Consell de Formentera, a través del área de Bienestar Social, informa de que ya ha salido a licitación la construcción del proyecto de vivienda destinada a menores de doce años en situación de desprotección. La vivienda dispondrá de diez habitaciones y estará ubicada en el área sociosanitaria, junto al Centro de Día.

Si se cumplen los plazos de ejecución, la obra estará terminada a lo largo de 2023. El presupuesto es de 496.966 euros más IVA y el proyecto cuenta con una subvención de 150.000 euros de los fondos europeos destinados a la recuperación económica.

El conseller de Bienestar Social, Rafael Ramírez, ha señalado que "con este hogar, se favorecerá la atención individualizada y familiar de los menores en acogimiento, lo que proporcionará un mejor entorno de atención psicosocial de los niños y, además, se creará un recurso de atención a familias vulnerables, una problemática que afecta específicamente a las mujeres, que son en su mayoría las responsables del cuidado y la atención a la infancia".

En la actualidad, Formentera no dispone de ningún recurso de acogimiento residencial para menores en esta situación y, actualmente, alrededor de un 30 % de los usuarios del servicio de protección de menores en Formentera son susceptibles de utilizar este espacio.